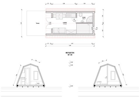
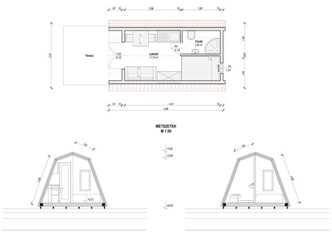
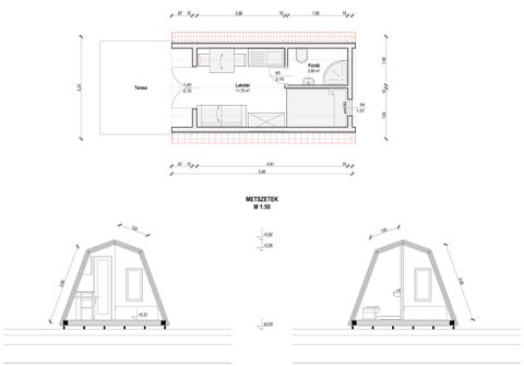
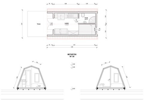
Chalet/Holzhaus mit kleiner Terrasse auf 100qm-Parzelle
für 1-4 Personen, Holzbauweise, isoliert, wintertauglich.
Badezimmer mit Dusche, Waschbecken, Spiegel, Toilette mit Abzug.
Wohn/Schlafraum: 1 Doppelbett mit Stauraum, 1 Sitzgelegenheit (ist ausziehbar und wird dann zu einem Doppelbett) mit Stauraum Klimaanlage mit Heizfunktion und Fernseher mit Radio.
Esstisch mit 4 Hockern, kleiner Schrank, Kleiderhaken.
Küchenteil mit Spüle und kleinem Geschirrschrank, (Frühstücksküche) mit Tassen, Tellern (Groß und Klein), Gläser und Besteck, Messer, Dosenöffner sowie Frühstücksbrettchen, Korkenzieher, Eierbecher, Kaffeemaschine, Wasserkocher, Mikrowelle mit Eierkocher, Kühlschrank ohne Eisfach, Untertisch-Warmwassergerät.
Sonnenschirm
Mittagessen und Abendessen ist im Campingrestaurant Oazis möglich. Frühstück ist möglich bei vorheriger Anmeldung im Varkert-Restaurant vom Thermalbad Pàpa (direkter Nachbar vom Campingplatz)



Haus 1 (Parzelle 4), Haus 2 (Parzelle 5), Haus 3 (Parzelle 18)

Haus 4 (Parzelle 19), Haus 17 (Parzelle 161), Haus 18 (Parzelle 162), Haus 19 (Parzelle 184)
Zum Vergrößern Bild anklicken